À vendre loué : Appartement 3 pièces à Décines-Charpieu - Réf. 5034
DECINES CHARPIEU 69150
187 000 € *
* Honoraires à la charge du vendeur
Proposé par votre agence :
218 avenue Jean Jaurès
69150 DECINES
Réf : 5034
VENDU LOUE: Dans un immeuble de 2013 découvrez cet appartement sous bail jusqu'en juin 2029 (750€ hors charges +150€ de charges) à vendre situé au coeur de Décines-Charpieu, dans le quartier animé du centre-ville ,également proche de bon... Voir plus
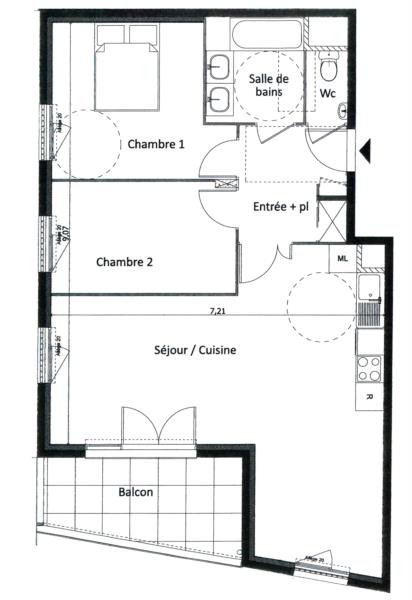
66.54 m²
3 pièce(s)
2 chambre(s)
1 sdb
1 parking(s)
À vendre loué : Appartement 3 pièces à Décines-Charpieu - Réf. 5034
Descriptif
Réf : 5034
VENDU LOUE: Dans un immeuble de 2013 découvrez cet appartement sous bail jusqu'en juin 2029 (750€ hors charges +150€ de charges) à vendre situé au coeur de Décines-Charpieu, dans le quartier animé du centre-ville ,également proche de bon... Voir plus
66.54 m²
3 pièce(s)
2 chambre(s)
1 sdb
1 parking(s)
Fiche technique du bien
Bilan énergétique
Logement extrêmement performant
Logement extrêmement peu performant
passoire énergétique
consommation (énergie primaire)
102
kWh
/m².an
90 kWh
/m².an
d'énergie finale
émissions (gaz à effet de serre)
18*
kg CO₂/m².an
* Dont émissions de gaz à effet de serre
peu d'émissions de CO₂
émissions de CO₂ très importantes
18
kg CO₂/m².an
Les informations sur les risques auxquels ce bien est exposé sont disponibles sur le site Géorisques : www.georisques.gouv.fr
Estimation du coût annuel en énergie pour un usage standard entre 570€ et 810€ au 01/01/2021
Simuler votre prêt immobilier avec notre partenaire
Le quartier
Découvrez d’autres biens dans le quartier
Les horaires
Lundi
09h00 - 12h00 / 14h00 - 19h00
Mardi
09h00 - 12h00 / 14h00 - 19h00
Mercredi
09h00 - 12h00 / 14h00 - 19h00
Jeudi
09h00 - 12h00 / 14h00 - 19h00
Vendredi
09h00 - 12h00 / 14h00 - 19h00
Samedi
09h00 - 12h00
Dimanche
Fermé
